Все объявления автора: Eldorado1983
№ ID: Дата Регион/Адрес Описание Цена
18673 27/02/2025 --Алмазарский район

№ 18673
Продаётся 3-комнатная квартира 77м²

№ 18673
Продаётся 3-комнатная квартира 77м²

73500 у.е.

Продаётся 3-комнатная квартира 77м²

--Алмазарский район, Карасарой, Ташкент, Узбекистан
73 500 у.е. 27/02/2025 ID: 18673
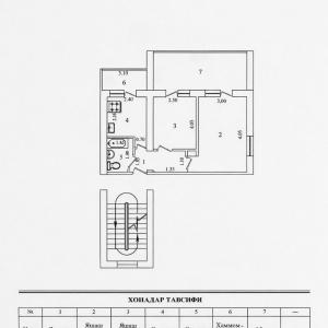
Продается уютная 3-комнатная квартира в историческом районе Алмазар массив Ц-22, Карасарай, недалеко от 28-й школы. Характеристики квартиры: • Количество комнат: 3 • Этаж: 5 • Этажность дома: 9 • Общая площадь: 77м² • Материал дома: монолит • Дом сейсмоустойчивый • Планировка: все раздельно • Состояние квартиры: чистая + ИПОТЕКА ВОЗМОЖНА но цена будет 75.000$ Цена: 73.500у.е. стартовая Преимущества: + Удобное расположение: рядом детская площадка, школы №28 и №159, магазины, аптеки, стадион, садик, Парк River. + Отличная транспортная развязка. Звоните по указанным номерам: +998(97)719-02-79 - Тарихий Алмазар тумани, Ц-22 массиви, Қарасарой ҳудудида, 28-мактаб яқинида жойлашган шинам 3 хонали квартира сотилади. Хонадоннинг хусусиятлари: • Хоналар сони: 3 • Қават: 5 • Уйнинг қавати: 9 • Умумий майдони: 77м ² • Уй материали: монолит • Сейсмик (Зилзилага) чидамли уй • Режаси: барча хоналар алоҳида • Хонадоннинг ҳолати: яхши +ИПОТЕКА КУРИБ ЧИКИЛАДИ у холда нархи 75.000ш.б Нархи: 73.500ш.б. нархи келишилади Афзалликлари: - Қулай жойлашиши: ёнида болалар майдони, № 28 ва № 159 мактаблар, дўкон, дорихона, стадион, боғча, River PARK боғи. - Қулай транспорт алмашинуви. Қўшимча маълумот: +998(97)719-02-79
подробнее
+998 97 7190279

Продаётся 3-комнатная квартира 77м²

--Алмазарский район, Карасарой, Ташкент, Узбекистан
73 500 у.е.
27/02/2025

Продается уютная 3-комнатная квартира в историческом районе Алмазар массив Ц-22, Карасарай, недалеко от 28-й школы. Характеристики квартиры: • Количество комнат: 3 • Этаж: 5 • Этажность дома: 9 • Общая площадь: 77м² • Материал дома: монолит • Дом сейсмоустойчивый • Планировка: все раздельно • Состояние квартиры: чистая + ИПОТЕКА ВОЗМОЖНА но цена будет 75.000$ Цена: 73.500у.е. стартовая Преимущества: + Удобное расположение: рядом детская площадка, школы №28 и №159, магазины, аптеки, стадион, садик, Парк River. + Отличная транспортная развязка. Звоните по указанным номерам: +998(97)719-02-79 - Тарихий Алмазар тумани, Ц-22 массиви, Қарасарой ҳудудида, 28-мактаб яқинида жойлашган шинам 3 хонали квартира сотилади. Хонадоннинг хусусиятлари: • Хоналар сони: 3 • Қават: 5 • Уйнинг қавати: 9 • Умумий майдони: 77м ² • Уй материали: монолит • Сейсмик (Зилзилага) чидамли уй • Режаси: барча хоналар алоҳида • Хонадоннинг ҳолати: яхши +ИПОТЕКА КУРИБ ЧИКИЛАДИ у холда нархи 75.000ш.б Нархи: 73.500ш.б. нархи келишилади Афзалликлари: - Қулай жойлашиши: ёнида болалар майдони, № 28 ва № 159 мактаблар, дўкон, дорихона, стадион, боғча, River PARK боғи. - Қулай транспорт алмашинуви. Қўшимча маълумот: +998(97)719-02-79


подробнее
+998 97 7190279
18676 07/03/2025 --Юнусабадский район

№ 18676
Продаётся 2-комнатная квартира в Центре

№ 18676
Продаётся 2-комнатная квартира в Центре

65000 у.е.

Продаётся 2-комнатная квартира в Центре

--Юнусабадский район, Рынок Ахмад Дониш, улица Ахмада Дониша, Ташкент, Узбекистан
65 000 у.е. 07/03/2025 ID: 18676
ПРОДАЁТСЯ ДВУХ КОМНАТНАЯ КВАРТИРА В САМОМ СЕРЦЕ ЮНУСАБАД-13! Идеальное расположение: - В шаговой доступности ТРЦ Мегапланет, Метро, Базары Ахмад Дониш и Дехкан. - Рядом детские площадки, школы №246 и №12, детский сад №501, магазины и аптеки и т.д. - Отличная транспортная развязка для удобных поездок по городу. Характеристики квартиры: • Количество комнат: 2 • Этаж: 1 • Этажность дома: 4 • Балкон: 1.5х6 • Общая площадь: 42м² • Материал дома: панельный • Планировка комнат: смежная • Санузел раздельный • Состояние квартиры: чистая • Квартира: угловая • Имеется подвал Цена: 65.000у.е. стартовая     Звоните по указанным номерам: +998(97)719-02-79 - - - - - ЮНУСОБОД-13НИНГ МАРКАЗИДА ИККИ ХОНАЛИ КВАРТИРА СОТИЛАДИ! Ажойиб жойлашув: - Мега Планет савдо маркази, метро, Аҳмад Дониш ва Дехқон бозорлари пиёда юриш масофасида. - Яқин атрофда болалар майдончалари, 246 ва 12-мактаблар, 501-сонли болалар боғчаси, дўконлар ва дорихоналар мавжуд. - Шаҳар бўйлаб қулай ҳаракатланиш учун аъло транспорт алоқаси. Квартира хусусиятлари: • Хоналар сони: 2 • Қават: 1 • Уй қаватлари сони: 4 • Балкон: 1.5x6 • Умумий майдон: 42м² • Уй материали: панел • Хоналар режалаштирилиши: туташган • Санузел: алоҳида • Квартира ҳолати: тоза • Квартира: бурчакли • Ертула мавжуд Нархи: 65.000ш.б. нархи келишилади Қўнғироқ қилинг: +998(97)719-02-79
подробнее
+998 97 7190279

Продаётся 2-комнатная квартира в Центре

--Юнусабадский район, Рынок Ахмад Дониш, улица Ахмада Дониша, Ташкент, Узбекистан
65 000 у.е.
07/03/2025

ПРОДАЁТСЯ ДВУХ КОМНАТНАЯ КВАРТИРА В САМОМ СЕРЦЕ ЮНУСАБАД-13! Идеальное расположение: - В шаговой доступности ТРЦ Мегапланет, Метро, Базары Ахмад Дониш и Дехкан. - Рядом детские площадки, школы №246 и №12, детский сад №501, магазины и аптеки и т.д. - Отличная транспортная развязка для удобных поездок по городу. Характеристики квартиры: • Количество комнат: 2 • Этаж: 1 • Этажность дома: 4 • Балкон: 1.5х6 • Общая площадь: 42м² • Материал дома: панельный • Планировка комнат: смежная • Санузел раздельный • Состояние квартиры: чистая • Квартира: угловая • Имеется подвал Цена: 65.000у.е. стартовая     Звоните по указанным номерам: +998(97)719-02-79 - - - - - ЮНУСОБОД-13НИНГ МАРКАЗИДА ИККИ ХОНАЛИ КВАРТИРА СОТИЛАДИ! Ажойиб жойлашув: - Мега Планет савдо маркази, метро, Аҳмад Дониш ва Дехқон бозорлари пиёда юриш масофасида. - Яқин атрофда болалар майдончалари, 246 ва 12-мактаблар, 501-сонли болалар боғчаси, дўконлар ва дорихоналар мавжуд. - Шаҳар бўйлаб қулай ҳаракатланиш учун аъло транспорт алоқаси. Квартира хусусиятлари: • Хоналар сони: 2 • Қават: 1 • Уй қаватлари сони: 4 • Балкон: 1.5x6 • Умумий майдон: 42м² • Уй материали: панел • Хоналар режалаштирилиши: туташган • Санузел: алоҳида • Квартира ҳолати: тоза • Квартира: бурчакли • Ертула мавжуд Нархи: 65.000ш.б. нархи келишилади Қўнғироқ қилинг: +998(97)719-02-79


подробнее
+998 97 7190279
18678 13/04/2026 -Ташкентская область

№ 18678
ИПОТЕКА-ПРОДАЁТСЯ-МЕТРО 2-комнатная квартира

№ 18678
ИПОТЕКА-ПРОДАЁТСЯ-МЕТРО 2-комнатная квартира

68999 у.е.

ИПОТЕКА-ПРОДАЁТСЯ-МЕТРО 2-комнатная квартира

-Ташкентская область, Янгихаёт район, массив Сергели-5А
68 999 у.е. 13/04/2026 ID: 18678
ИПОТЕКА | ПРОДАЁТСЯ | СРОЧНО ДВУХКОМНАТНАЯ КВАРТИРА Район: Янгихаёт, Сергели-5А Метро: станция "Сергели" Ориентир: ТРЦ Golden Life • Новостройка 2019 года • Этаж:8 • Этажность дома: 9 • Площадь: 64 м² • Балкон: 1.7 x 4.9 м • Материал дома: бетон • Планировка: всё раздельно • Состояние: хорошее • Бонус, всё остаётся — мебель и техника! Преимущества локации: всё необходимое для комфортной жизни в шаговой доступности — детские сады №44 и №50, школы №329 и №330, современный спорткомплекс, детская площадка с футбольным полем, супермаркеты Uzum Market и Элит Маркет, банки, магазины и уютные кафе с национальной кухней. Отличное место для семьи и активного образа жизни! Цена: 841 800 000 сум ≈ ( 68 999 ) Звоните прямо сейчас: +998(90)805-08-79
подробнее
+998 97 7190279

ИПОТЕКА-ПРОДАЁТСЯ-МЕТРО 2-комнатная квартира

-Ташкентская область, Янгихаёт район, массив Сергели-5А
68 999 у.е.
13/04/2026

ИПОТЕКА | ПРОДАЁТСЯ | СРОЧНО ДВУХКОМНАТНАЯ КВАРТИРА Район: Янгихаёт, Сергели-5А Метро: станция "Сергели" Ориентир: ТРЦ Golden Life • Новостройка 2019 года • Этаж:8 • Этажность дома: 9 • Площадь: 64 м² • Балкон: 1.7 x 4.9 м • Материал дома: бетон • Планировка: всё раздельно • Состояние: хорошее • Бонус, всё остаётся — мебель и техника! Преимущества локации: всё необходимое для комфортной жизни в шаговой доступности — детские сады №44 и №50, школы №329 и №330, современный спорткомплекс, детская площадка с футбольным полем, супермаркеты Uzum Market и Элит Маркет, банки, магазины и уютные кафе с национальной кухней. Отличное место для семьи и активного образа жизни! Цена: 841 800 000 сум ≈ ( 68 999 ) Звоните прямо сейчас: +998(90)805-08-79


подробнее
+998 97 7190279
18680 13/04/2026 --Мирабадский район

№ 18680
ИПОТЕКА-ПРОДАЁТСЯ-МЕТРО 2-комнатная квартира

№ 18680
ИПОТЕКА-ПРОДАЁТСЯ-МЕТРО 2-комнатная квартира

84000 у.е.

ИПОТЕКА-ПРОДАЁТСЯ-МЕТРО 2-комнатная квартира

--Мирабадский район, Улица Нукусская, Нукусская улица, Ташкент, Узбекистан
84 000 у.е. 13/04/2026 ID: 18680
СРОЧНО | ПРОДАЁТСЯ | ИПОТЕКА 2-комнатная квартира Мирабадский район, ул. Нукус Ориентир: за Музеем Паровозов • Французская планировка • Этаж: 9 • Этажность: 9 • Площадь: 66 м² • Балкон: 0.9 x 7.7 м • Материал дома: бетон • Санузел: раздельный • Состояние: хорошее • ВСЁ остаётся — мебель и техника в подарок! Отличное расположение: метро Ташкент — рядом Госпитальный рынок 145-я школа Тихий и зелёный район ЦЕНА: 1 024 800 000 сум ≈ ( 83.999 ) Звоните прямо сейчас: +998 (97) 719-02-79
подробнее
+998 97 7190279

ИПОТЕКА-ПРОДАЁТСЯ-МЕТРО 2-комнатная квартира

--Мирабадский район, Улица Нукусская, Нукусская улица, Ташкент, Узбекистан
84 000 у.е.
13/04/2026

СРОЧНО | ПРОДАЁТСЯ | ИПОТЕКА 2-комнатная квартира Мирабадский район, ул. Нукус Ориентир: за Музеем Паровозов • Французская планировка • Этаж: 9 • Этажность: 9 • Площадь: 66 м² • Балкон: 0.9 x 7.7 м • Материал дома: бетон • Санузел: раздельный • Состояние: хорошее • ВСЁ остаётся — мебель и техника в подарок! Отличное расположение: метро Ташкент — рядом Госпитальный рынок 145-я школа Тихий и зелёный район ЦЕНА: 1 024 800 000 сум ≈ ( 83.999 ) Звоните прямо сейчас: +998 (97) 719-02-79


подробнее
+998 97 7190279
18682 09/03/2026 --Юнусабадский район

№ 18682
ИПОТЕКА | ПРОДАЁТСЯ Юнусабад-8, 3-комнатная

№ 18682
ИПОТЕКА | ПРОДАЁТСЯ Юнусабад-8, 3-комнатная

65000 сум

ИПОТЕКА | ПРОДАЁТСЯ Юнусабад-8, 3-комнатная

--Юнусабадский район, 8-КВАРТАЛ (ПРИНЦ), Юнусабад, Ташкент, Узбекистан
65 000 сум 09/03/2026 ID: 18682
ИПОТЕКА | ПРОДАЁТСЯ 3-комнатная квартира в Юнусабад-8 ориентир напротив "Билюр"   Характеристики квартиры: • Количество комнат: 3 • Этаж: 4 • Этажность дома: 4 • Балкон: 5.60х1.50 • Общая площадь: 67м² • Материал дома: панельный • Планировка: смежно раздельная • Состояние квартиры: без ремонта • Квартира не торцевая • Крыша отремонтирована Цена: 780 000 000 сум ≈ ( 65 000 )  Звоните по указанным номерам:  +998(97)719-02-79
подробнее
+998 97 7190279

ИПОТЕКА | ПРОДАЁТСЯ Юнусабад-8, 3-комнатная

--Юнусабадский район, 8-КВАРТАЛ (ПРИНЦ), Юнусабад, Ташкент, Узбекистан
65 000 сум
09/03/2026

ИПОТЕКА | ПРОДАЁТСЯ 3-комнатная квартира в Юнусабад-8 ориентир напротив "Билюр"   Характеристики квартиры: • Количество комнат: 3 • Этаж: 4 • Этажность дома: 4 • Балкон: 5.60х1.50 • Общая площадь: 67м² • Материал дома: панельный • Планировка: смежно раздельная • Состояние квартиры: без ремонта • Квартира не торцевая • Крыша отремонтирована Цена: 780 000 000 сум ≈ ( 65 000 )  Звоните по указанным номерам:  +998(97)719-02-79


подробнее
+998 97 7190279
18686 12/02/2026 --Учтепинский район

№ 18686
Чиланзар | Учтепа-24 | Фархадский Базар

№ 18686
Чиланзар | Учтепа-24 | Фархадский Базар

54000 у.е.

Чиланзар | Учтепа-24 | Фархадский Базар

--Учтепинский район, Улица Лутфий, Lutfiy ko'chasi, Баяут, Узбекистан
54 000 у.е. 12/02/2026 ID: 18686
СРОЧНО | ПРОДАЁТСЯ ДВУХ КОМНАТНАЯ КВАРТИРА Район: УЧТЕПА-24 Ориентир: КАФЕ МОСКВА   Характеристики квартиры: • Количество комнат: 2 • Перепланирована в студию • Этаж: 3 • Этажность дома: 5 • Два балкон: 1.90х5.60 и 1х3.10 • Общая площадь: 47м² • Материал дома: кирпичный • Состояние квартиры: БЕЗ РЕМОНТА • Квартира торцевая Цена: 648 000 000 сўм ≈ 54 000 Преимущества: Удобное расположение: рядом школа №78, Детский сад №387, 356, Фархадский базар, магазины,аптеки, кафешки и т.д. Отличная транспортная развязка. Звоните по указанным номерам:+998(97)719-02-79  --- SHOSHILINCH | SOTILADI  IKKI XONALI KVARTIRA Hudud: UCHTEPA-24 Mo‘ljal: MOSKVA KAFESI   Kvartira tavsifi: • Xonalar soni: 2 • Studiyaga qayta rejalashtirilgan • Qavat: 3 • Uy qavatlari soni: 5 • Ikki balkon: 1.90×5.60 va 1×3.10 • Umumiy maydoni: 47m² • Uy materiali: g‘isht • Kvartira holati: TA’MIRSIZ • Kvartira burchakda joylashgan Narxi: 648 000 000 so‘m ≈ 54 000 Afzalliklar: Qulay joylashuv yaqinida 78-maktab, 387 va 356-sonli bolalar bog‘chalari, Farhod bozori, do‘konlar, dorixonalar, kafelar va boshqalar. A’lo transport qatnovi. Qo‘ng‘iroq qiling: +998(97)719-02-79
подробнее
+998 97 7190279

Чиланзар | Учтепа-24 | Фархадский Базар

--Учтепинский район, Улица Лутфий, Lutfiy ko'chasi, Баяут, Узбекистан
54 000 у.е.
12/02/2026

СРОЧНО | ПРОДАЁТСЯ ДВУХ КОМНАТНАЯ КВАРТИРА Район: УЧТЕПА-24 Ориентир: КАФЕ МОСКВА   Характеристики квартиры: • Количество комнат: 2 • Перепланирована в студию • Этаж: 3 • Этажность дома: 5 • Два балкон: 1.90х5.60 и 1х3.10 • Общая площадь: 47м² • Материал дома: кирпичный • Состояние квартиры: БЕЗ РЕМОНТА • Квартира торцевая Цена: 648 000 000 сўм ≈ 54 000 Преимущества: Удобное расположение: рядом школа №78, Детский сад №387, 356, Фархадский базар, магазины,аптеки, кафешки и т.д. Отличная транспортная развязка. Звоните по указанным номерам:+998(97)719-02-79  --- SHOSHILINCH | SOTILADI  IKKI XONALI KVARTIRA Hudud: UCHTEPA-24 Mo‘ljal: MOSKVA KAFESI   Kvartira tavsifi: • Xonalar soni: 2 • Studiyaga qayta rejalashtirilgan • Qavat: 3 • Uy qavatlari soni: 5 • Ikki balkon: 1.90×5.60 va 1×3.10 • Umumiy maydoni: 47m² • Uy materiali: g‘isht • Kvartira holati: TA’MIRSIZ • Kvartira burchakda joylashgan Narxi: 648 000 000 so‘m ≈ 54 000 Afzalliklar: Qulay joylashuv yaqinida 78-maktab, 387 va 356-sonli bolalar bog‘chalari, Farhod bozori, do‘konlar, dorixonalar, kafelar va boshqalar. A’lo transport qatnovi. Qo‘ng‘iroq qiling: +998(97)719-02-79


подробнее
+998 97 7190279
18688 13/04/2026 --Учтепинский район

№ 18688
Чиланзар | Учтепа-12 | Фархадский Базар

№ 18688
Чиланзар | Учтепа-12 | Фархадский Базар

66000 у.е.

Чиланзар | Учтепа-12 | Фархадский Базар

--Учтепинский район, Chilonzor 12-kvartl, Учтепинский район, Ташкент, Узбекистан
66 000 у.е. 13/04/2026 ID: 18688
ИПОТЕКА | ПРОДАЁТСЯ ДВУХ КОМНАТНАЯ КВАРТИРА Район: Учтепа-12 Массив: Чиланзар Ориентир: Фархадский Базар   Характеристики квартиры: • Количество комнат: 2 • Этаж: 2 • Этажность дома: 4 • Балкон: 1.5х3 • Общая площадь: 46м² • Материал дома: панельный • Планировка: смежная • Состояние квартиры: Хорошее • Квартира торцевая • Бонус, мебель и техника останется частично Цена: 805 200 000 сўм ≈ 66 000 Преимущества локации: Комфортный и востребованный район с развитой инфраструктурой для жизни всей семьи. В непосредственной близости расположены школы №189, №283, Ташкентская юридическая школа и музыкальная школа №16, детские сады №341, №328, №334 В шаговой доступности Фархадский Базар, супермаркеты, бутики, аптеки и все необходимые сервисы повседневного уровня. Удобная транспортная развязка позволяет быстро и без лишних временных затрат добраться в любую часть города. Звоните по указанным номерам: +998(97)719-02-79  --- IPOTEKA | SOTILADI IKKI XONALI KVARTIRA Tuman: Uchtepa-12г Massiv: Chilonzor Mo‘ljal: Farhod bozori Kvartira xususiyatlari: • Xonalar soni: 2 • Qavat: 2 • Uy qavatlari soni: 4 • Balkon: 1.5x3 • Umumiy maydon: 46 m² • Uy materiali: panel • Rejasi: tutash (smejny) • Holati: Yaxshi • Kvartira burchakda joylashgan • Bonus: mebel va texnika qisman qoldiriladi Narxi: 805 200 000 so‘m ≈ 66 000 Joylashuv afzalliklari: Oila uchun qulay va talab yuqori bo‘lgan hudud, rivojlangan infratuzilmaga ega. Yaqin atrofda 189-maktab, 283-maktab, Toshkent yuridik maktabi, 16-sonli musiqa maktabi, 341-, 328-, 334-sonli bolalar bog‘chalari joylashgan. Piyoda yurish masofasida Farhod bozori, supermarketlar, butiklar, dorixonalar va kundalik ehtiyojlar uchun barcha xizmatlar mavjud. Qulay transport yo‘nalishlari orqali shaharning istalgan nuqtasiga tez va oson yetib borish mumkin. Qo‘ng‘iroq qiling: +998(97)719-02-79
подробнее
+998 97 7190279

Чиланзар | Учтепа-12 | Фархадский Базар

--Учтепинский район, Chilonzor 12-kvartl, Учтепинский район, Ташкент, Узбекистан
66 000 у.е.
13/04/2026

ИПОТЕКА | ПРОДАЁТСЯ ДВУХ КОМНАТНАЯ КВАРТИРА Район: Учтепа-12 Массив: Чиланзар Ориентир: Фархадский Базар   Характеристики квартиры: • Количество комнат: 2 • Этаж: 2 • Этажность дома: 4 • Балкон: 1.5х3 • Общая площадь: 46м² • Материал дома: панельный • Планировка: смежная • Состояние квартиры: Хорошее • Квартира торцевая • Бонус, мебель и техника останется частично Цена: 805 200 000 сўм ≈ 66 000 Преимущества локации: Комфортный и востребованный район с развитой инфраструктурой для жизни всей семьи. В непосредственной близости расположены школы №189, №283, Ташкентская юридическая школа и музыкальная школа №16, детские сады №341, №328, №334 В шаговой доступности Фархадский Базар, супермаркеты, бутики, аптеки и все необходимые сервисы повседневного уровня. Удобная транспортная развязка позволяет быстро и без лишних временных затрат добраться в любую часть города. Звоните по указанным номерам: +998(97)719-02-79  --- IPOTEKA | SOTILADI IKKI XONALI KVARTIRA Tuman: Uchtepa-12г Massiv: Chilonzor Mo‘ljal: Farhod bozori Kvartira xususiyatlari: • Xonalar soni: 2 • Qavat: 2 • Uy qavatlari soni: 4 • Balkon: 1.5x3 • Umumiy maydon: 46 m² • Uy materiali: panel • Rejasi: tutash (smejny) • Holati: Yaxshi • Kvartira burchakda joylashgan • Bonus: mebel va texnika qisman qoldiriladi Narxi: 805 200 000 so‘m ≈ 66 000 Joylashuv afzalliklari: Oila uchun qulay va talab yuqori bo‘lgan hudud, rivojlangan infratuzilmaga ega. Yaqin atrofda 189-maktab, 283-maktab, Toshkent yuridik maktabi, 16-sonli musiqa maktabi, 341-, 328-, 334-sonli bolalar bog‘chalari joylashgan. Piyoda yurish masofasida Farhod bozori, supermarketlar, butiklar, dorixonalar va kundalik ehtiyojlar uchun barcha xizmatlar mavjud. Qulay transport yo‘nalishlari orqali shaharning istalgan nuqtasiga tez va oson yetib borish mumkin. Qo‘ng‘iroq qiling: +998(97)719-02-79


подробнее
+998 97 7190279
18690 05/05/2026 --Шайхонтохурский район

№ 18690
Центр | Ц-15 | Лабзак | Корзинка Абая | Парк

№ 18690
Центр | Ц-15 | Лабзак | Корзинка Абая | Парк

85000 у.е.

Центр | Ц-15 | Лабзак | Корзинка Абая | Парк

--Шайхонтохурский район, Лабзак, Ташкент, Узбекистан
85 000 у.е. 05/05/2026 ID: 18690
ПРОДАЁТСЯ ТРЁХ КОМНАТНАЯ КВАРТИРА Район: Шайхантахурский Массив: Лабзак Ц-13 Ориентир: Вельвет   Характеристики квартиры: • Количество комнат: 3 • Этаж: 9 • Этажность дома: 9 • Балкон: 1х7 • Общая площадь: 69м² • Материал дома: монолит • Планировка: Франция, всё разлельно • Состояние квартиры: Среднее • Квартира не торцевая • Крыша отремонтирована • Лифт новый Цена:1 037 000 000 сўм ≈ 85 000 Преимущества: - Удобное расположение: рядом Школы №19, 115, Детский сад: 412, Юридический лицей, Парк Анхор, магазины, аптеки и т.д. Отличная транспортная развязка. Звоните по указанным номерам: +998(97)719-02-79  --- SOTILADI UCH XONALI KVARTIRA Tuman: Shayxontohur Massiv: Labzak C-13 Mo‘ljal: Velvet Kvartira tavsifi: • Xonalar soni: 3 • Qavati: 9 • Uy qavatlari sonli: 9 • Balkon: 1x7 • Umumiy maydoni: 69 m² • Uy materiali: monolit • Rejalashtirish: Fransiya, barcha xonalar alohida • Kvartira holati: O‘rtacha • Kvartira burchak emas • Tom qismi ta’mirlangan • Lift yangi Narxi: 1 037 000 000 so‘m ≈ 85 000 Afzalliklari: - Qulay joylashuv: yaqin atrofda 19- va 115-maktablar, 412-bolalar bog‘chasi, Yuridik litsey, Anhor bog‘i, do‘konlar, dorixonalar va boshqalar mavjud. - A’lo darajadagi transport qatnovi. Ko‘rsatilgan raqamlarga qo‘ng‘iroq qiling: +998(97)719-02-79
подробнее
+998 97 7190279

Центр | Ц-15 | Лабзак | Корзинка Абая | Парк

--Шайхонтохурский район, Лабзак, Ташкент, Узбекистан
85 000 у.е.
05/05/2026

ПРОДАЁТСЯ ТРЁХ КОМНАТНАЯ КВАРТИРА Район: Шайхантахурский Массив: Лабзак Ц-13 Ориентир: Вельвет   Характеристики квартиры: • Количество комнат: 3 • Этаж: 9 • Этажность дома: 9 • Балкон: 1х7 • Общая площадь: 69м² • Материал дома: монолит • Планировка: Франция, всё разлельно • Состояние квартиры: Среднее • Квартира не торцевая • Крыша отремонтирована • Лифт новый Цена:1 037 000 000 сўм ≈ 85 000 Преимущества: - Удобное расположение: рядом Школы №19, 115, Детский сад: 412, Юридический лицей, Парк Анхор, магазины, аптеки и т.д. Отличная транспортная развязка. Звоните по указанным номерам: +998(97)719-02-79  --- SOTILADI UCH XONALI KVARTIRA Tuman: Shayxontohur Massiv: Labzak C-13 Mo‘ljal: Velvet Kvartira tavsifi: • Xonalar soni: 3 • Qavati: 9 • Uy qavatlari sonli: 9 • Balkon: 1x7 • Umumiy maydoni: 69 m² • Uy materiali: monolit • Rejalashtirish: Fransiya, barcha xonalar alohida • Kvartira holati: O‘rtacha • Kvartira burchak emas • Tom qismi ta’mirlangan • Lift yangi Narxi: 1 037 000 000 so‘m ≈ 85 000 Afzalliklari: - Qulay joylashuv: yaqin atrofda 19- va 115-maktablar, 412-bolalar bog‘chasi, Yuridik litsey, Anhor bog‘i, do‘konlar, dorixonalar va boshqalar mavjud. - A’lo darajadagi transport qatnovi. Ko‘rsatilgan raqamlarga qo‘ng‘iroq qiling: +998(97)719-02-79


подробнее
+998 97 7190279
18691 05/05/2026 --Алмазарский район

№ 18691
ЖК Парк Сити Алмазар

№ 18691
ЖК Парк Сити Алмазар

93150 у.е.

ЖК Парк Сити Алмазар

--Алмазарский район, Северный алмазар, Ташкент, Узбекистан
93 150 у.е. 05/05/2026 ID: 18691
СРОЧНО ПРОДАЁТСЯ КВАРТИРА ЖК PARK CITY OLMAZOR ЛОКАЦИЯ Район: Алмазарский Ориентир: Северный Алмазар    Описание объекта: • Количество комнат: 3 • Этаж: 6 • Этажность дома: 12 • Общая площадь: 82м² • Высота потолка: 3.30 • Тип дома: новостройка 2024 • Класс жилья: Комфорт-класс • Материал: кирпич • Состояние: коробка • Квартира не торцевая • С КАДАСТРОМ ЦЕНА: 1 136 430 000 сум ≈ 93 150 1м²=1150 Преимущества: В шаговой доступности находятся Cambridge International School, Архитектурный лицей, школа №159, больницы, магазины, рестораны и т.д. +998(97)719-02-79 --- SOTILADI XONADON Park City Olmazor turar-joy majmuasi LOKATSIYA Tuman: Olmazor Mo‘ljal: Shimoliy Olmazor   Obyekt tavsifi: • Xonalar soni: 3 • Qavat: 6 • Uy qavatlari: 12 • Umumiy maydon: 82 m² • Shift balandligi: 3.30 • Uy turi: novostroyka 2024 • Uy-joy klassi: Komfort klass • Uy materiali: g‘isht • Holati: korobka • Kvartira torsevoy emas • KADASTR BOR NARXI:1 136 430 000 so‘m ≈ 93 150 1м²=1150 Afzalliklari: Yaqin masofada Cambridge International School, Arxitektura litseyi, 159-maktab, shifoxonalar, do‘konlar, restoranlar va boshqalar joylashgan. +998(97)719-02-79
подробнее
+998 97 7190279

ЖК Парк Сити Алмазар

--Алмазарский район, Северный алмазар, Ташкент, Узбекистан
93 150 у.е.
05/05/2026

СРОЧНО ПРОДАЁТСЯ КВАРТИРА ЖК PARK CITY OLMAZOR ЛОКАЦИЯ Район: Алмазарский Ориентир: Северный Алмазар    Описание объекта: • Количество комнат: 3 • Этаж: 6 • Этажность дома: 12 • Общая площадь: 82м² • Высота потолка: 3.30 • Тип дома: новостройка 2024 • Класс жилья: Комфорт-класс • Материал: кирпич • Состояние: коробка • Квартира не торцевая • С КАДАСТРОМ ЦЕНА: 1 136 430 000 сум ≈ 93 150 1м²=1150 Преимущества: В шаговой доступности находятся Cambridge International School, Архитектурный лицей, школа №159, больницы, магазины, рестораны и т.д. +998(97)719-02-79 --- SOTILADI XONADON Park City Olmazor turar-joy majmuasi LOKATSIYA Tuman: Olmazor Mo‘ljal: Shimoliy Olmazor   Obyekt tavsifi: • Xonalar soni: 3 • Qavat: 6 • Uy qavatlari: 12 • Umumiy maydon: 82 m² • Shift balandligi: 3.30 • Uy turi: novostroyka 2024 • Uy-joy klassi: Komfort klass • Uy materiali: g‘isht • Holati: korobka • Kvartira torsevoy emas • KADASTR BOR NARXI:1 136 430 000 so‘m ≈ 93 150 1м²=1150 Afzalliklari: Yaqin masofada Cambridge International School, Arxitektura litseyi, 159-maktab, shifoxonalar, do‘konlar, restoranlar va boshqalar joylashgan. +998(97)719-02-79


подробнее
+998 97 7190279
18692 28/05/2026 --Шайхонтохурский район

№ 18692
Центр | Кукча Мечеть | Новостройка | Кадастр

№ 18692
Центр | Кукча Мечеть | Новостройка | Кадастр

98500 у.е.

Центр | Кукча Мечеть | Новостройка | Кадастр

--Шайхонтохурский район, Кукча Дарвоза 314 10042, KO
98 500 у.е. 28/05/2026 ID: 18692
СРОЧНО! Отличное предложение в ЖК OBI NAZIR! Район: Шайхантахурский Ориентир: Первая городская больница 3-комнатная квартира в новостройке Площадь: 74 м² Состояние: коробка идеальный вариант для ремонта под себя Этаж: 3 Этажность дома: 11 Высота потолков: 3.2 м Лифт: 1 Балкон: 1х3 Цена: 98 500 у.е. (СТАРТ) Звоните прямо сейчас: +998(97)719-02-79 --- SHOSHILING! ЖК OBI NAZIR’da ajoyib taklif! Tuman: Shayxontohur Mo‘ljal: 1-shahar kasalxonasi Yangi qurilgan uyda 3 xonali квартира Maydoni: 74 m² Holati: korobka o‘zingizga mos ta’mir qilish uchun ideal variant Qavat: 3 Uy qavatliligi: 11 Shift balandligi: 3.2 m Balkon: 1x3 Narxi: 98 500 y.e. (START) Hoziroq qo‘ng‘iroq qiling: +998(97)719-02-79
подробнее
+998 97 7190279

Центр | Кукча Мечеть | Новостройка | Кадастр

--Шайхонтохурский район, Кукча Дарвоза 314 10042, KO
98 500 у.е.
28/05/2026

СРОЧНО! Отличное предложение в ЖК OBI NAZIR! Район: Шайхантахурский Ориентир: Первая городская больница 3-комнатная квартира в новостройке Площадь: 74 м² Состояние: коробка идеальный вариант для ремонта под себя Этаж: 3 Этажность дома: 11 Высота потолков: 3.2 м Лифт: 1 Балкон: 1х3 Цена: 98 500 у.е. (СТАРТ) Звоните прямо сейчас: +998(97)719-02-79 --- SHOSHILING! ЖК OBI NAZIR’da ajoyib taklif! Tuman: Shayxontohur Mo‘ljal: 1-shahar kasalxonasi Yangi qurilgan uyda 3 xonali квартира Maydoni: 74 m² Holati: korobka o‘zingizga mos ta’mir qilish uchun ideal variant Qavat: 3 Uy qavatliligi: 11 Shift balandligi: 3.2 m Balkon: 1x3 Narxi: 98 500 y.e. (START) Hoziroq qo‘ng‘iroq qiling: +998(97)719-02-79


подробнее
+998 97 7190279
18693 28/05/2026 --Сергелийский район

№ 18693
Сергели | Метро Чоштепа | Новостройка Кадастр

№ 18693
Сергели | Метро Чоштепа | Новостройка Кадастр

98000 у.е.

Сергели | Метро Чоштепа | Новостройка Кадастр

--Сергелийский район, Улица Джунарык 3
98 000 у.е. 28/05/2026 ID: 18693
Продаётся 3-комнатная квартира в ЖК “Qushnilar” (Сергели) Ориентир: метро Чаштепа Этаж: 1 Этажность дома: 17 Площадь: 84 м² Высота потолков: 3.2 м Кадастр есть Дом сдан в 2024 году Состояние: ремонт от застройщика Отличный вариант под нежилое помещение / коммерцию (офис, учебный центр, салон, магазин и т.д.) Цена: 98 000 у.е. (старт) Возможна покупка через банк! За дополнительной информацией звонить по номеру: +998(97)719-02-79 --- “Qushnilar” turar joy majmuasida 3 xonali kvartira sotiladi Mo‘ljal: Chashtepa metro Qavat: 1/17 Umumiy maydoni: 84 m² Shift balandligi: 3.2 m Kadastri bor Uy 2024-yilda foydalanishga topshirilgan Holati: quruvchidan ta’mirlangan Noturar joy / tijorat faoliyati uchun juda qulay Bank orqali xarid qilish mumkin Narxi: 98 000 y.e. (start) +998(97)719-02-79
подробнее
+998 97 7190279

Сергели | Метро Чоштепа | Новостройка Кадастр

--Сергелийский район, Улица Джунарык 3
98 000 у.е.
28/05/2026

Продаётся 3-комнатная квартира в ЖК “Qushnilar” (Сергели) Ориентир: метро Чаштепа Этаж: 1 Этажность дома: 17 Площадь: 84 м² Высота потолков: 3.2 м Кадастр есть Дом сдан в 2024 году Состояние: ремонт от застройщика Отличный вариант под нежилое помещение / коммерцию (офис, учебный центр, салон, магазин и т.д.) Цена: 98 000 у.е. (старт) Возможна покупка через банк! За дополнительной информацией звонить по номеру: +998(97)719-02-79 --- “Qushnilar” turar joy majmuasida 3 xonali kvartira sotiladi Mo‘ljal: Chashtepa metro Qavat: 1/17 Umumiy maydoni: 84 m² Shift balandligi: 3.2 m Kadastri bor Uy 2024-yilda foydalanishga topshirilgan Holati: quruvchidan ta’mirlangan Noturar joy / tijorat faoliyati uchun juda qulay Bank orqali xarid qilish mumkin Narxi: 98 000 y.e. (start) +998(97)719-02-79


подробнее
+998 97 7190279
Партнеры